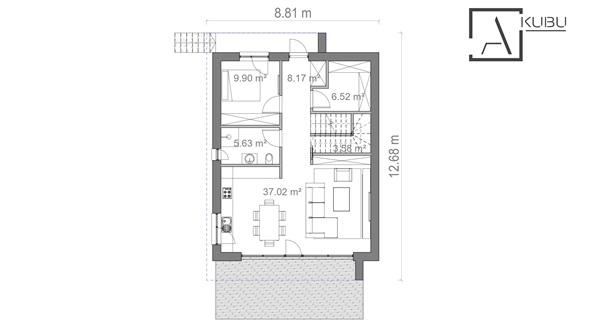
6.8, Dviejų aukštų su sutapdintu (plokščiu) stogu, 135 kv. m.
6.8
MB “A kubu”
135,10 kv.m.
Nėra stoginės ir garažo
Dviejų aukštų su sutapdintu (plokščiu) stogu
Architektas Dovilė Razgaitienė tel. +370 665 90239 arba el. paštu: dovile@akubu.lt
5 566,00 EUR
Į kainą įskaičiuota techninio darbo projekto sudėtis:
Bendroji dalis – statinių rodikliai, aiškinamasis raštas, bendrosios techninės specifikacijos, energiniai skaičiavimai, derinimai ir kiti dokumentai. Architektūrinė dalis – detalūs pastatų brėžiniai (planai, fasadai, pjūviai), langų ir durų specifikacijos, aiškinamasis raštas, techninės specifikacijos. Sklypo sutvarkymo dalis – sklypo planavimas, dangos, reljefo formavimas, privažiavimai, detalūs brėžiniai, skaičiavimai, aiškinamasis raštas. Vandens ir nuotekų dalis – vandens gręžinio projektavimas, nuotekų valymo įrenginiai arba prisijungimas prie centralizuotų tinklų. Pastatų konstrukcijos – konstrukcinių sprendinių detalizavimas, detalūs brėžiniai, aiškinamasis raštas. Projekto derinimas – dokumentų rengimas, prašymų pildymas, sąlygų užsakymas, derinimas su institucijomis, projekto kėlimas į „Infostatybą" ir statybos leidimo gavimas.
Į kainą neįskaičiuota:
Topografinė nuotrauka – kaina nustatoma individualiai. Mokestis už statybą leidžiantį dokumentą (VMI) – 93 €. Geologiniai grunto tyrimai (2 taškai vienam pastatui) – 480–600 € + PVM. Infrastruktūros mokestis (jei tokio reikalauja savivaldybė).
HELIOTROPAS - modernus dviejų aukštų, penkių kambarių, plokščio stogo 135,10 m² gyvenamasis namas su stogo terasa, erdvia svetaine bei jaukia lauko terasa.
.

.gif)
